找回密码
 立即注册
搜索
查看: 306|回复: 0

[网球] 21网球体育教案1

[复制链接]

4万

主题

224

回帖

19万

积分

管理员

积分
194906
发表于 2025-12-4 05:53:30 | 显示全部楼层 |阅读模式
网球课程教案
  项目名称:网球课                第1次课               任课教师:  刘***
教学内容
网球运动理论知识传授
教学任务
1、让学生了解有关网球运动的一些知识。
2、学习领会有关理论知识。
教学目标
1、掌握网球场地规格。
2、初步掌握基本比赛规则,欣赏比赛。
教学重、难点
基本的网球正规比赛规则。
场地器材
多媒体教室一间
课程部分
内         容
组 织 教 法
备注
开始部分(15分钟
1、集合整队清点人数;
2、师生问好,宣布本次课的任务及要求;
要求:上课认真听讲和领会动作要领
基本部分60分钟
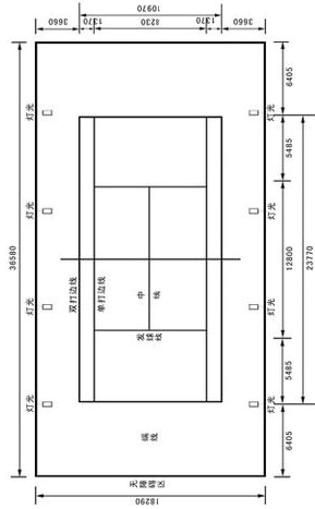
  • 介绍网球场地
    1、单打场地的标准尺寸是:23.77米(长)×8.23米(宽),双打场地的标准尺寸是:23.77米(长)×10.98米(宽)。中间由一条挂在最大直径为0.8厘米粗的绳索或钢丝绳上的网分开。网的两端应附着或跨在两个网柱上,网柱应为边长不超过15厘米的正方形方柱或直径为15厘米的圆柱。网柱不能超过网绳顶端以上2.5厘米。每侧网柱的中点应距场地0.914米,网柱的高度应使网绳或钢丝绳的顶端距地面垂直距离1.07米。

fe0b60c89e739e9b2ac7568da794bd69.jpg
课程部分
内         容
组 织 教 法
备注
基本部分60分钟
    2、在双打与单打兼用的场地上悬挂双打球网进行单打比赛时,球网应该用高1.07米的网柱支撑起来。这两根网柱被称为"单打支柱",它们应该是边长不超过7.5厘米的正方形或最大直径是7.5厘米的圆柱。每侧单打支柱的中点应该距单打场地0.914米。球网应该充分伸展开填满两个网柱之间的空间,网孔的大小以能防止球穿过为宜。球网中心的高度应该是0.914米并且用不超过5厘米宽的完全是白色的网带向下绷紧固定。球网上端的网绳或钢丝绳要用一条白色的网带包裹住,每一面的宽度不得小于5厘米也不能大于6.35厘米。在球网上,网带及单打支柱上均不得有广告。
    3、球场两端的界线叫做边线。在球网的每一边距离球网6.40米的地方画一条与球网平行的线叫做发球线。球网与每一边的发球线和边线组成的场地被发球中心线分为两个相等的部分叫做发球区,发球中线是一条连接两条发球线的中点与边线平行的线,线宽必须是5厘米。每一条端线都被一条长10厘米,宽5厘米的发球线的假定延长线分为相等的两部分,这条短线叫做中心标志,它与所触的端线呈直角相连,自端线向场内画。除了端线的最大宽度可以不超过10厘米以外,所有其他的线的宽度均应大于2.5厘米,而小于5厘米。所有的测量都应该到线的外沿为止。  
4、另外,在球场的两端底线以外应有不少于6.40米,两条边线外两侧不少于3.65米的空间。
二、网球比赛基本规则
    1、发球员和接发球员
    2、选择权
    比赛开始前由比赛双方用掷钱币的方法来决定选择场区或首先发球权、接发球权,得胜者有权选择或要求对方选择。
选择发球或接发球权,应让对方选择场区
选择场区,应让对方选择发球或接发球权
    3、发球员的站位
    4、发球员的位置
    5、第二次发球
    6、双打发球次序
    发球次序错误,应在发觉时立即纠正。但已得的分数或已造成的失误都有效。如发觉时全局比赛已经结束,此后发球次序就以该局为准轮流发球。
7、双打接球次序
    接发球次序错误,发觉后仍按照已错误的次序进行,直到下一接球局再进行纠正。
8、胜一局
    运动员每胜一球得一分,胜第一分记分15,裁判员报做Fifteen;胜第二分记分30,裁判员报做Thirty;胜第三分记分40,裁判员报做Forty;先得四分者胜一局。
教学步骤:
    教师讲解为主,多媒体课件直观辅助教学。
要求:
    学生认真听讲,通过观察多媒体课件形成直观表象。
教学目标:
    通过教师讲解、学生听讲和教学课件演示,掌握网球场的规格。
教学步骤:
    教师讲解和多媒体课件直观演示教学。
要求:
教师讲解语言干练,表述清晰、通俗易懂;
学生认真听讲,认真体会。
部分
内         容
组 织 教 法
备注
基本部分60分钟
    但遇双方各得三分时,则为平分 (Deuce) 平分后,一方(A)先得一分时为该运动员占先(Advantage A),占先后再得一分,才算胜一局;如一方占先后,对方又得一分,则仍为平分,依此类推,直到一方再平分后净胜两分结束该局,为胜一局。
9、胜一盘
    一方先胜6局为胜一盘。但双方各得5局时,有两种记分方法:
长盘制
决胜局计分制(决胜局计分制必须在比赛前宣布才有效。)
    当局数比分为6:6后,第13局为决胜局。决胜局采用先得7分者胜该局及该盘。如果分数为6:6,则需一方再净胜2分才能为胜该局及该盘。
三、裁判员报分
    在网球比赛中,场上的比赛成绩时由主裁判用英文呼报。
    在非决胜局比赛中所呼报零分为love(0),第一分为fifteen(15),第二分为thirty(30),第三分为forty(40),平分为deuce,A领先为advantage A,A胜一局为game A,A胜一盘为set A,A胜全场称为match A。所报的比分,前面的分数应为发球方的分数。如报thirty-forty(30:40),即发球方得2分,接球方得3分。
    在决胜局中,零分称为zero(0),第一分称为one(1),第二分称为two(2),第三分为three(3),……。主裁判应报分数最高的队员,例A领先,一比零称为one-zero(1:0),A。B得2分后超过A,则称two-one(2:1),B 。
四、规则小测试。
五、现场观看比赛注意事项。
教学目标
    通过教师讲解、课件演示、学生认真听讲体会,掌握基本的网球比赛规则。
教学目标:
    通过学习和了解现场观看比赛时的注意事项,使自己成为文明观众。
结束部分15分钟
  • 课后小结
  • 安排课后练习任务
  • 宣布下课,师生再见
教学步骤:
    总结、回顾本节课主要内容。
您需要登录后才可以回帖 登录 | 立即注册

本版积分规则

Archiver|手机版|小黑屋|5432教案网 ( 蜀ICP备2022024372号-1 |川公网安备51152402000101号 )|网站地图

GMT+8, 2026-5-11 10:30 , Processed in 0.125074 second(s), 32 queries .

Powered by Discuz! X3.5

© 2001-2026 Discuz! Team.

快速回复 返回顶部 返回列表